logo udesign.png

Estamos em manutenção!

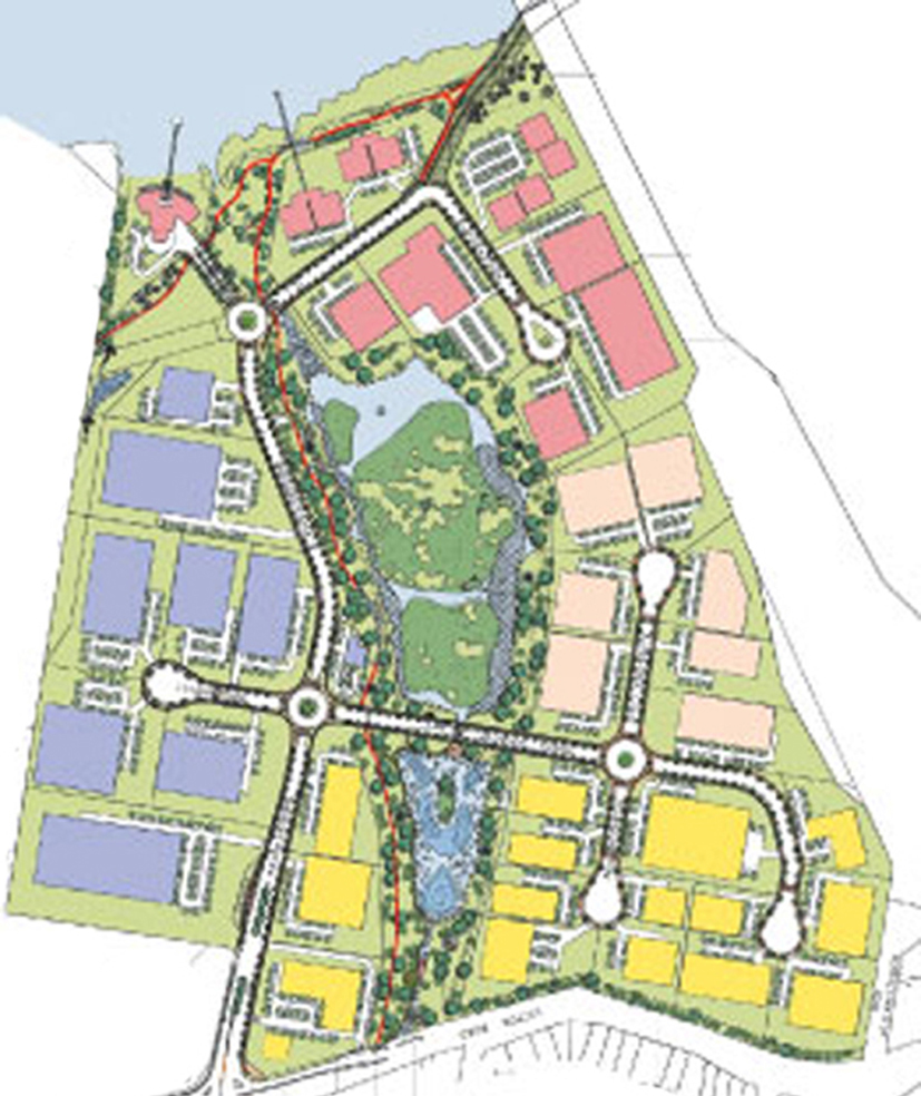
Metroplex

São Paulo | São Paulo | Brasil

Ano 1988

 

Cliente

The Angliss Group

 

Concepção

Eduardo Leite Ribeiro Neto

 

Desenvolvimento

U Design e CFi

 

  • Coordenação de Projeto
  • Fiscalização de Execução de Obra

 

Descrição

Parque Industrial Comercial